



产品简介
输送机缓冲床是专为输送系统中的加载点设计的设备,能够有效吸收物料从高处落下时对输送带和结构产生的冲击力。缓冲床通常安装在落料口的底部区域,利用条状缓冲条和稳固的支撑框架为输送带提供保护。缓冲床的设计初衷是减少冲击对输送带的磨损,延长设备使用寿命,并提高系统的整体运行效率。
输送机缓冲床是专为输送系统中的加载点设计的设备,能够有效吸收物料从高处落下时对输送带和结构产生的冲击力。缓冲床通常安装在落料口的底部区域,利用条状缓冲条和稳固的支撑框架为输送带提供保护。缓冲床的设计初衷是减少冲击对输送带的磨损,延长设备使用寿命,并提高系统的整体运行效率。
缓冲床主要由超高分子量聚乙烯(UHMW)、天然橡胶和铝合金固定结构构成。它的核心组件——缓冲条,通过提供高度耐磨和抗冲击的保护来缓解物料掉落时的冲击压力,确保输送带在恶劣工况下也能稳定工作。
缓冲床广泛应用于煤矿、港口、钢厂、水泥厂等需要处理大块物料的场景,尤其适合落料冲击较大的工况。无论是大块矿石还是高磨损的散装物料,缓冲床都能为输送系统提供有效保护,延长设备使用寿命,减少停机时间,并大幅降低维护成本。


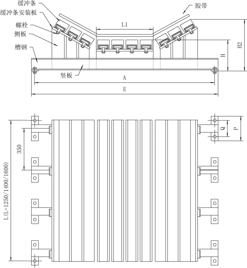
| 型号 | 皮带宽度 | θ | H(mm) | E(mm) | A(mm) | L1(mm) | Q(mm) | P(mm) | 缓冲条数量 |
|---|---|---|---|---|---|---|---|---|---|
| 200 | 350 | 450 | |||||||
| H2 | H2 | H2 | |||||||
| B500-L | 500 | 250 | 300 | —— | 180 | 800 | 740 | 225 | 160 |
| B650-L | 650 | —— | 329 | —— | 180 | 950 | 890 | 250 | 160 |
| B800-L | 800 | 292 | 385 | 389 | 200 | 1150 | 1000 | 276 | 160 |
| B1000-L | 1000 | 371 | 462 | 505 | 240 | 1350 | 1200 | 377 | 160 |
| B1200-L | 1200 | 388 | 528 | 540 | 257 | 1600 | 1540 | 428 | 160 |
| B1400-L | 1400 | 497 | 573 | 680 | 261 | 1800 | 1740 | 479 | 160 |
| B1600-L | 1600 | 524 | 655 | 736 | 285 | 2040 | 1980 | 581 | 160 |
| B1800-L | 1800 | 578 | 740 | 817 | 310 | 2240 | 2180 | 631 | 160 |
| B2000-L | 2000 | 606 | 811 | 874 | 320 | 2480 | 2420 | 740 | 160 |

当物料从较高的落料口掉落到输送带上时,巨大的冲击力会作用在输送带表面,极易造成带体损坏或撕裂。缓冲床通过其内置的UHMW和橡胶层,能够迅速吸收和分散这些冲击力,减少对带体的直接冲击。超高分子量聚乙烯的耐磨性和低摩擦特性确保了输送带在长时间工作后依然保持完好,而天然橡胶层则通过缓冲作用减少物料对带体的磨损。整个系统设计不仅能够提高输送带的使用寿命,还能有效减少系统的维护成本。

在线留言
客户服务热线
周一至周日:9:00-18:00
189-2061-6125
